Modern Ballard

Share

2002 NW 60th St, Seattle, WA 98107

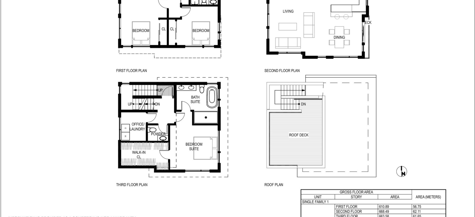
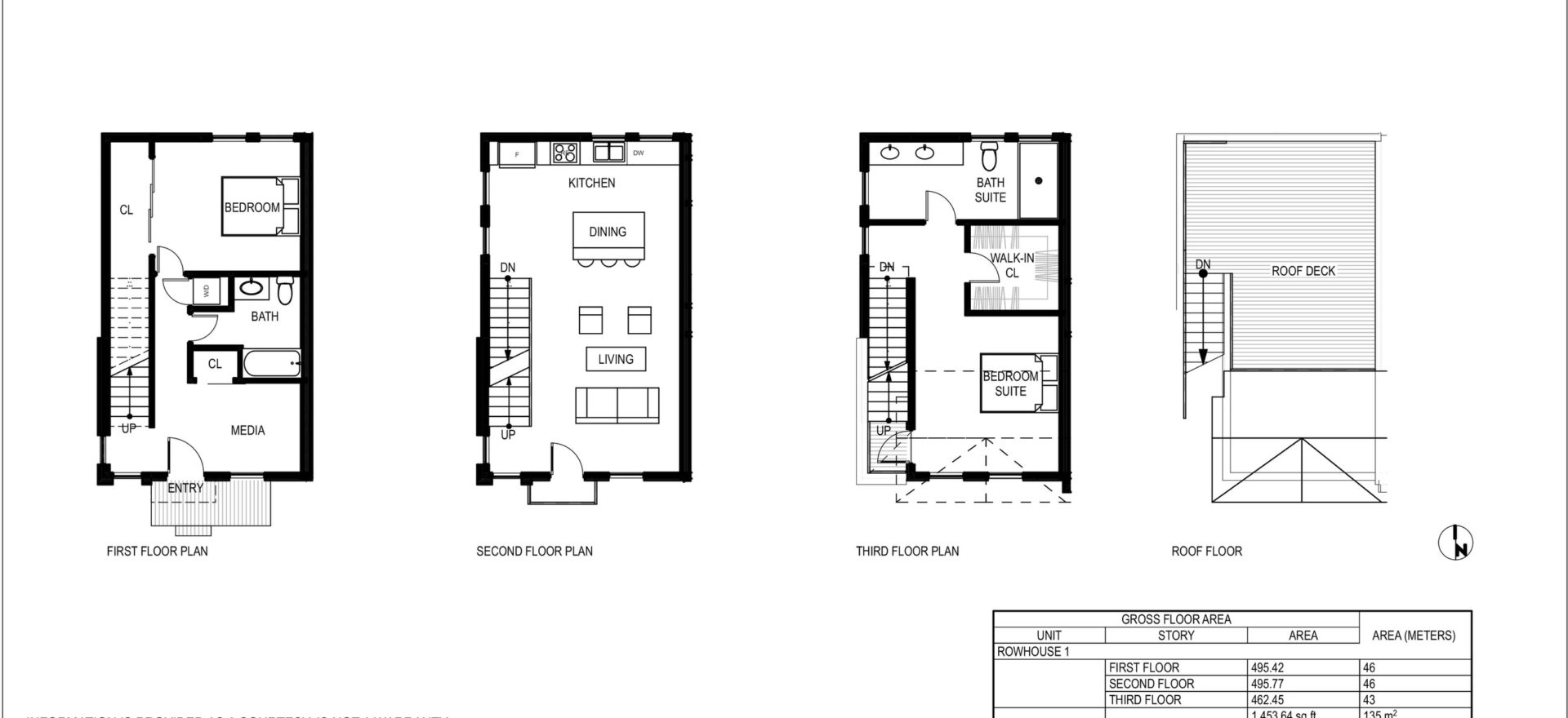
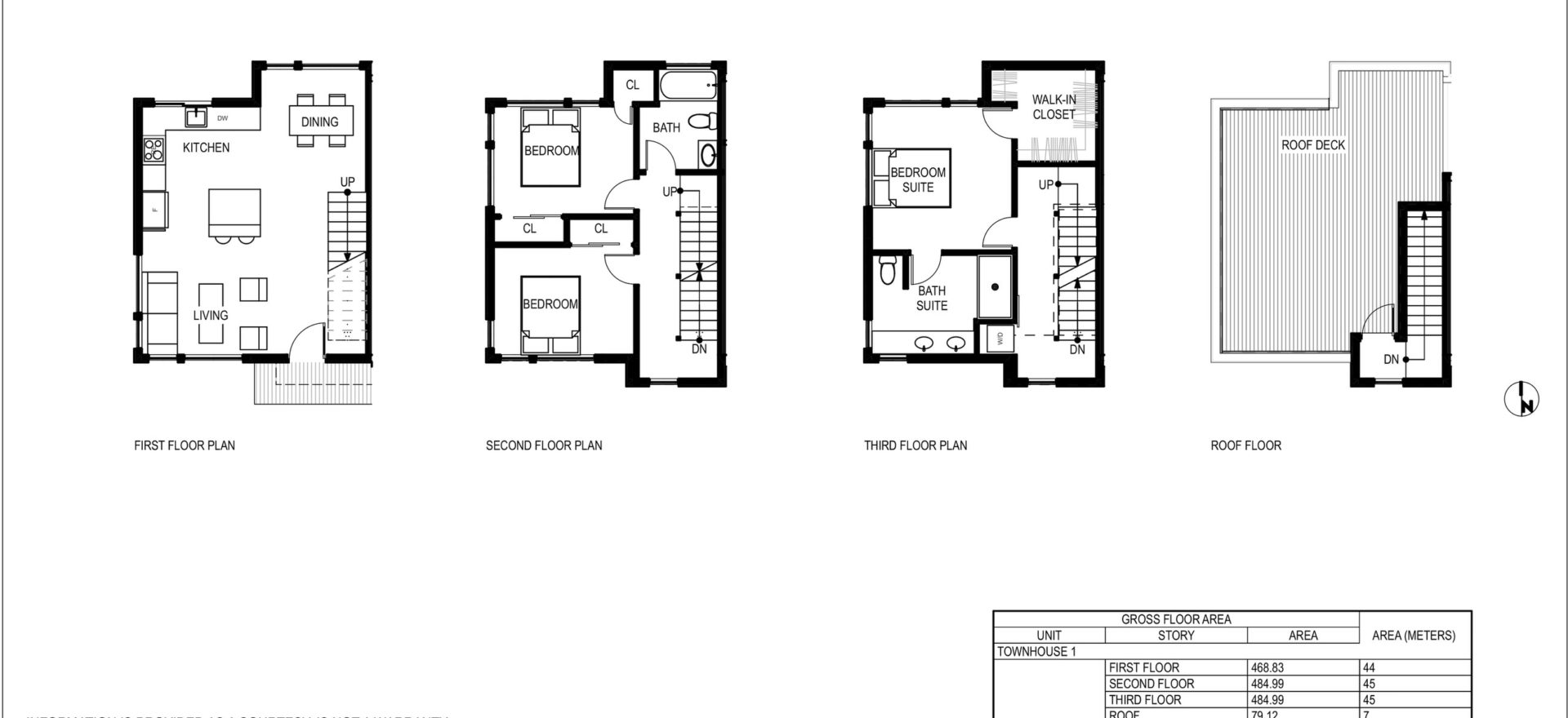
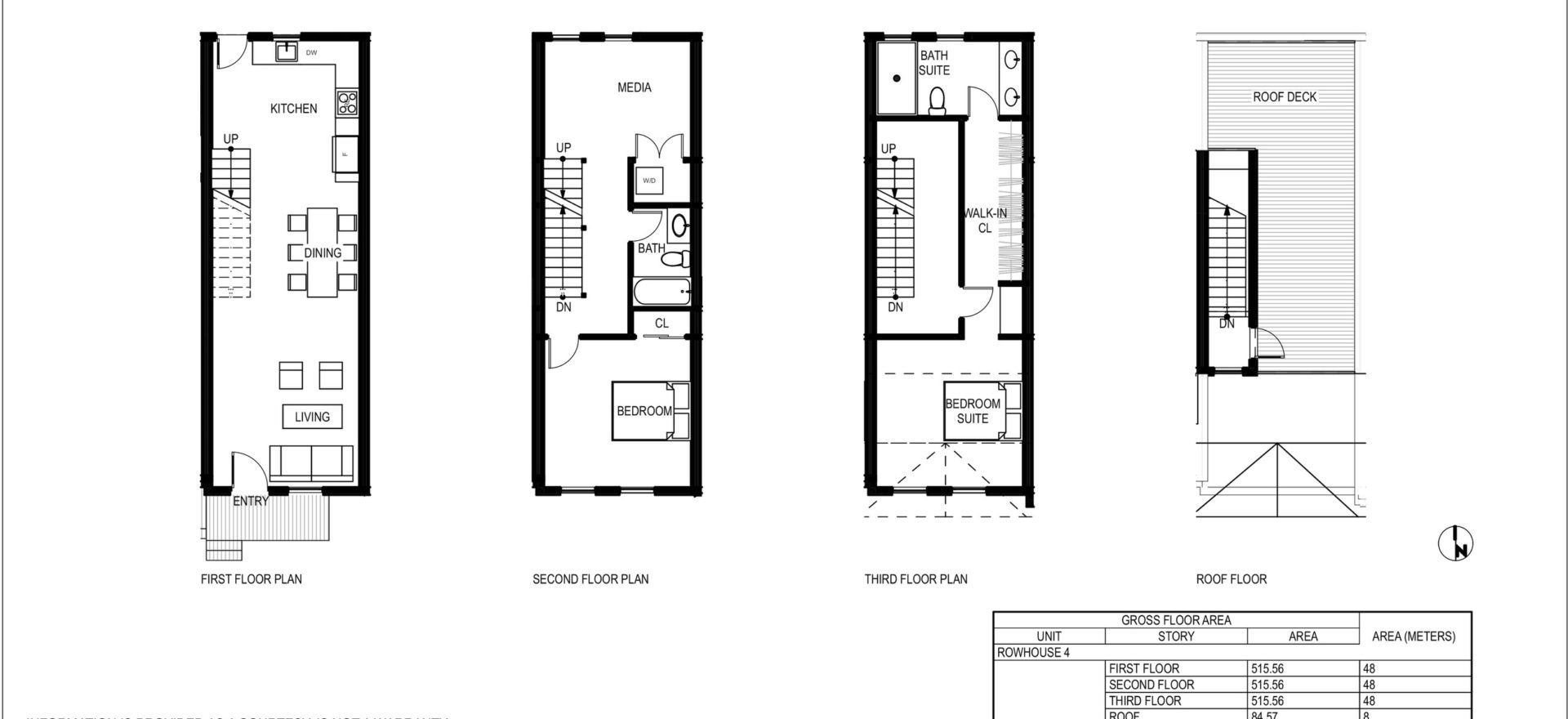
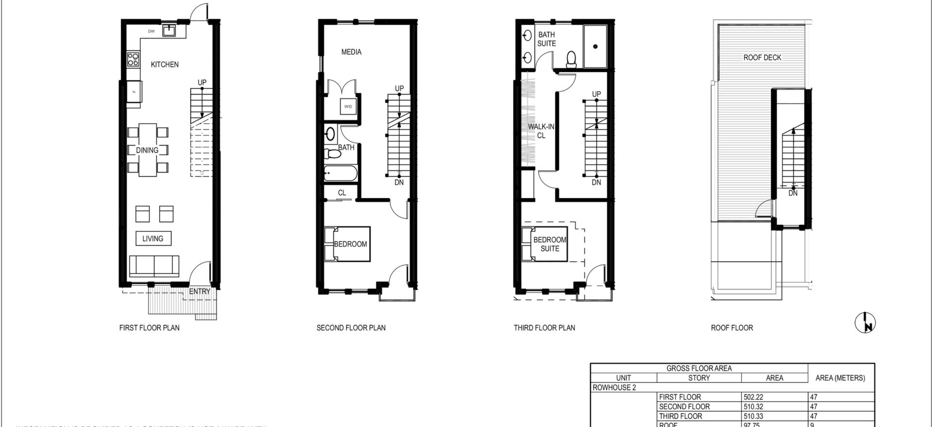
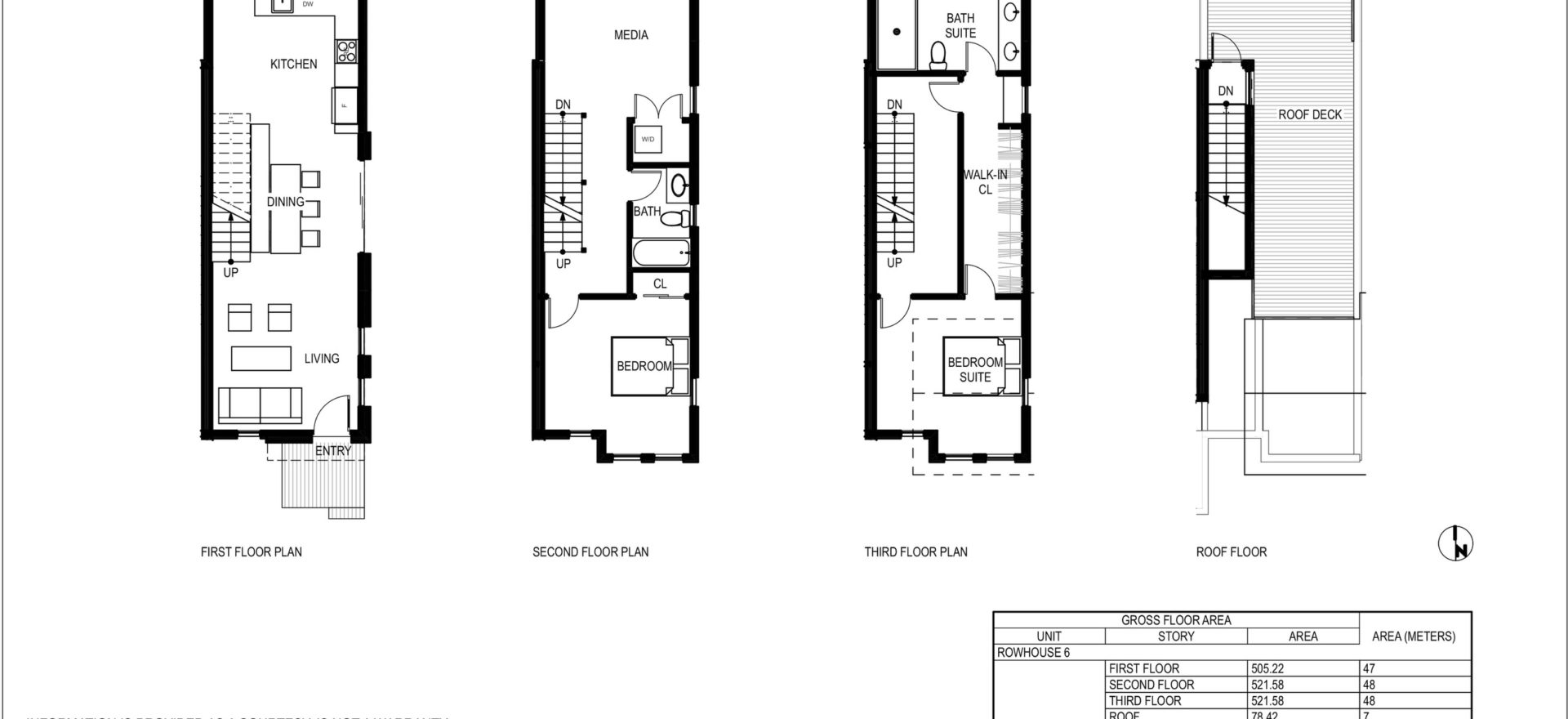
2 Townhomes, 2 Single Family and 6 Rowhouses

Tucked between two iconic homes in the neighborhood you will find Flanigan Group Development’s Modern Ballard project. With a short distance to all Ballard has to offer, these homes will be at the top of everyone’s list.

 

Estimated Completion: Spring 2021
School District: Seattle School District
Neighborhood: Ballard
Walkscore: 91
Views: Possibly from roof decks
Parks:

  • Ballard Corners Park
  • Ballard Commons Park
  • Bergen Place
  • Ballard Playground
  • Salmon Bay Park
  • Gilman Playground
  • Loyal Heights Playground
  • Webster Park
  • Kirke Park
  • Ballard Locks Fish Ladder
2-3 bd
2-3 ba
1,451-2,158 sqft
Key Facts

Gourmet Appliance Package, featuring Bertazzoni range and other Bosch appliances

Metal and Wood Floating Stair Systems

Floor to Ceiling Engineered Metal with Glass Walls

Metal Railing Throughout

Polished Concrete and Hardwood Floors

Modern Cabinetry with Lifetime Warranty

Quartz Slab Countertops Throughout

Curbless Showers

Targeting LEED Gold

Energy Efficiency and Earth Friendly Focused for Your Well Being

Heat Pumps Provide Heating and Cooling

Heat Recovery Ventilation System

Low voc Materials

Spray Foam and Blown Batts Insulation

Amenities

Commercial Grade Rain Screen System

Drought Tolerant Landscaping

Upgraded Window Packages

Metal Canopies and Railings

Pervious Pavers

1 Parking Stall per Home

Hardi Panel siding

Zometek Decking, Highly Durable Recycled Products