Madison Valley Townhomes

Share

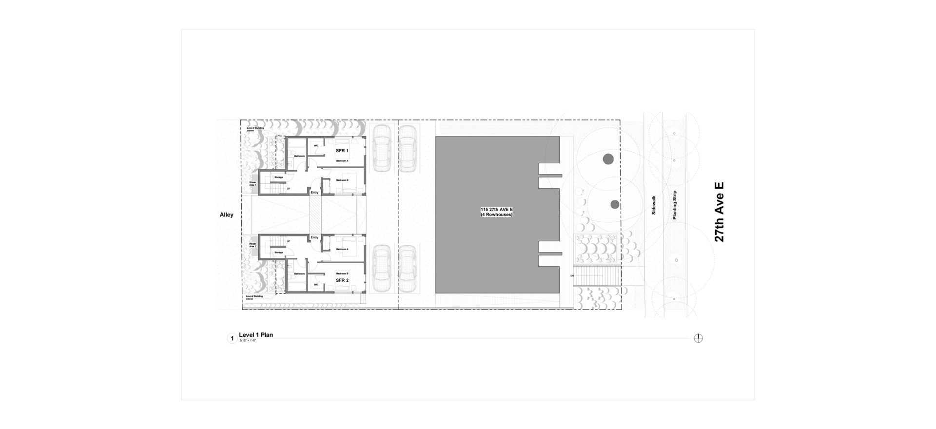
115 27th Ave E, Seattle, WA 98112

4 Townhomes & 2 Single Family Homes

Just moments from Madison Park, you will find our 4 rowhouses and 2 single family homes tucked away on a quiet street and just minutes to downtown. Location does not get much better than this. Anyone who loves a good neighborhood stroll will adore the shops and restaurants on Madison Avenue. A French theme prevails with places like Tallulah’s, Luc, Crush and Voila! Bistro. You can also hit up fun Home décor stores and boutiques like City Peoples Garden Store or Sugarlump for clothing.

 

Estimated Completion: January 2020
School District: Seattle School District
Neighborhood: Madison Valley
Walkscore: 84
Views: Possibly from roof decks
Parks:

  • Madison Park
  • Plum Tree Park
  • Homer Harris Park
  • William Grose Park
  • Prentis I Frazier Park
  • Miller Triangle
  • Alvin Larkins Park
2-3 bd
2-3 ba
1,426-1,928 sqft
Key Facts

Gourmet Appliance Package, Featuring Bertazzoni Range and other Bosch Appliances

Metal and Wood Floating Stair Systems

Floor to Ceiling Engineered Metal with Glass Walls

Metal Railing Throughout

Polished Concrete and Hardwood Floors

Modern Cabinetry with Lifetime Warranty

Quartz Slab Countertops Throughout

Curbless Showers

Targeting LEED Gold

Energy Efficiency and Earth Friendly Focused for Your Well Being

Heat Pumps Provide Heating and Cooling

Heat Recovery Ventilation System

Low voc Materials

Spray Foam and Blown Batts Insulation

Amenities

Commercial Grade Rain Screen System

Drought Tolerant Landscaping

Upgraded Window Packages

Metal Canopies and Railings

Pervious Pavers

1 Parking Stall per Home

Hardi Panel Siding

Zometek Decking, Highly Durable Recycled Products