Courtyard Off Madison

Share

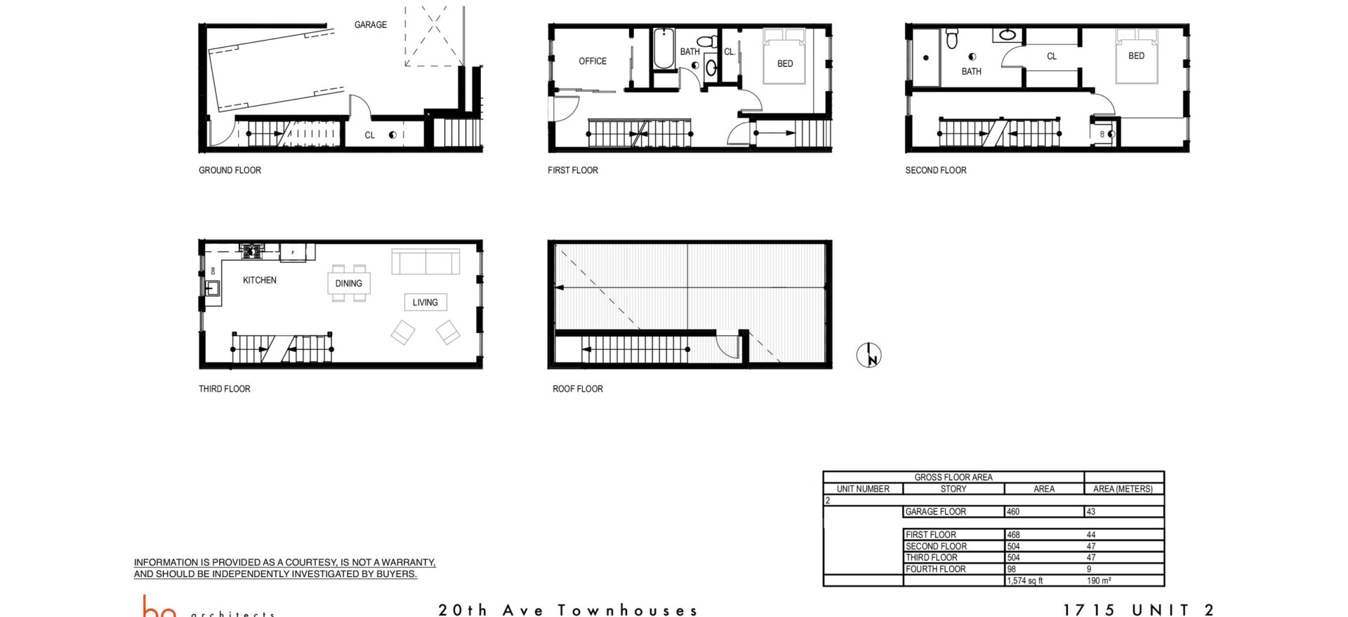
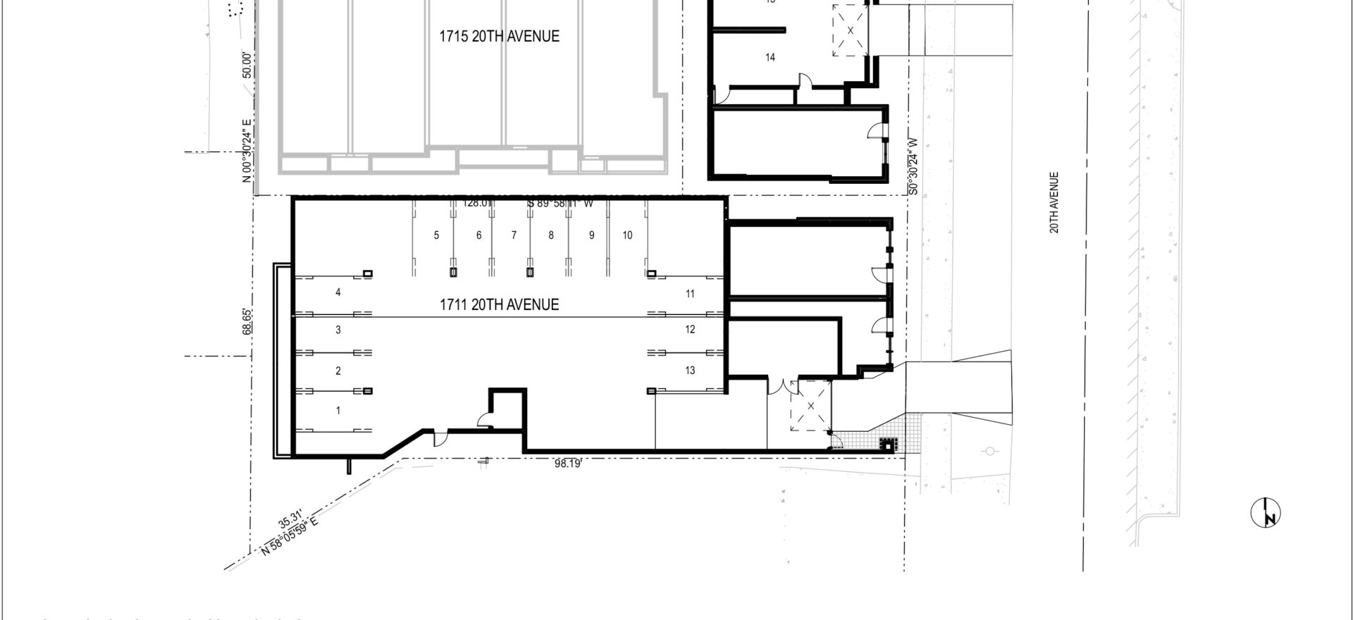
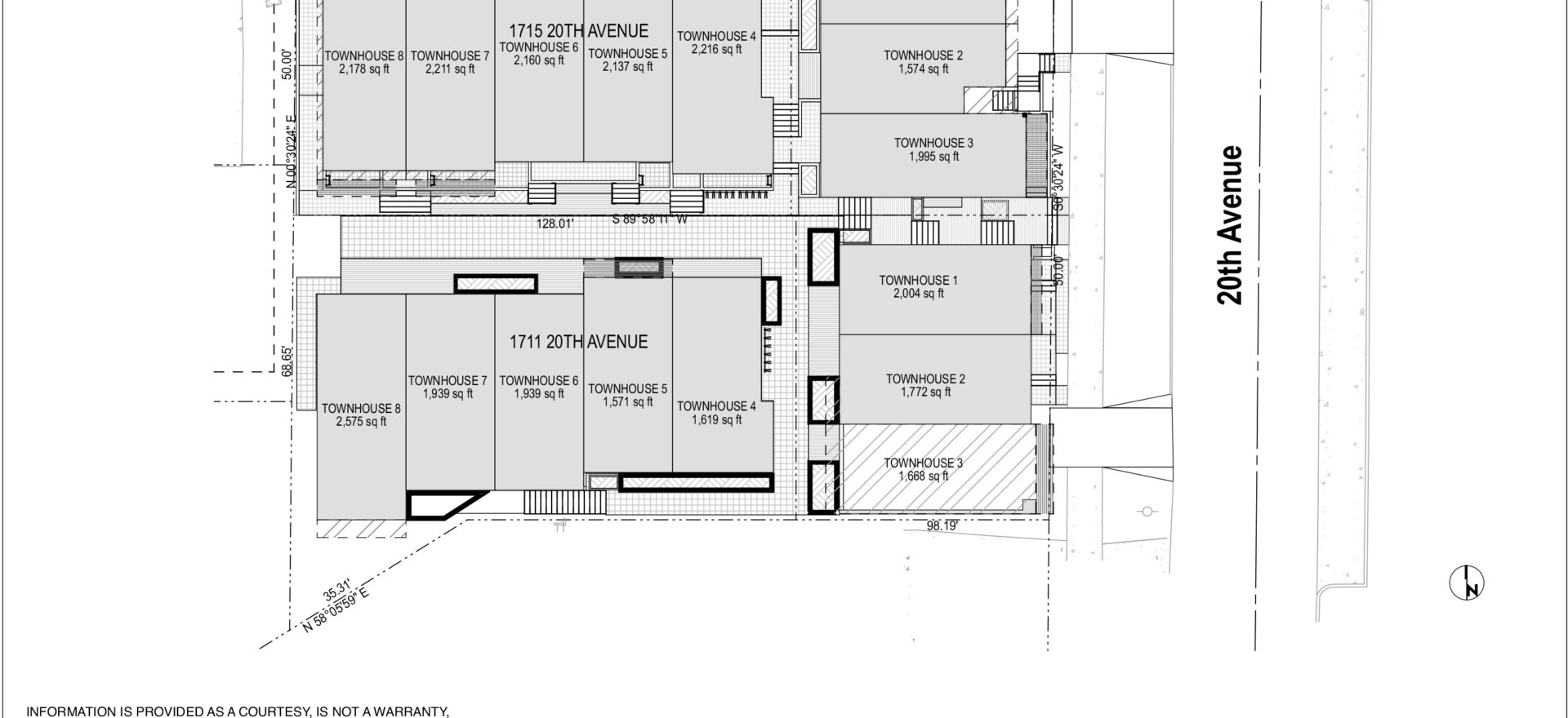
1711 20th Ave, Seattle, WA 98122

16 Townhomes

Located in the heart of one of Seattle’s most desired neighborhoods this project contains 16 modern townhomes with live work options for those that have a home based business, or want to start one! The location puts you at the center of everything, while being far enough away from the hustle and bustle of downtown to give you a truly residential feel. A great walk score means that shops, bars and restaurants in the neighborhood are just a short stroll away from your front door.

 

Estimated Completion: Spring 2021
School District: Seattle School District
Neighborhood: Capitol Hill
Walkscore: 91
Views: Possibly from roof decks
Parks:

  • Miller Triangle
  • Seven Hills Park
  • Homer Harris Park
  • T. T. Minor Playground
  • Williams Place
  • McGilvra Place Park
  • Plum Tree Park
  • Prentis I Frazier Park
  • Lewis Park
  • Cal Anderson Park
  • Firehouse Mini Park
  • William Grose Park
  • New City Park
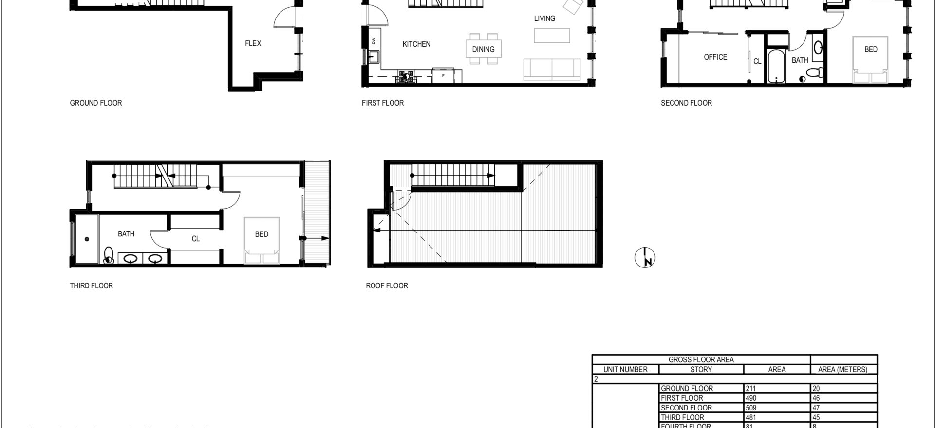
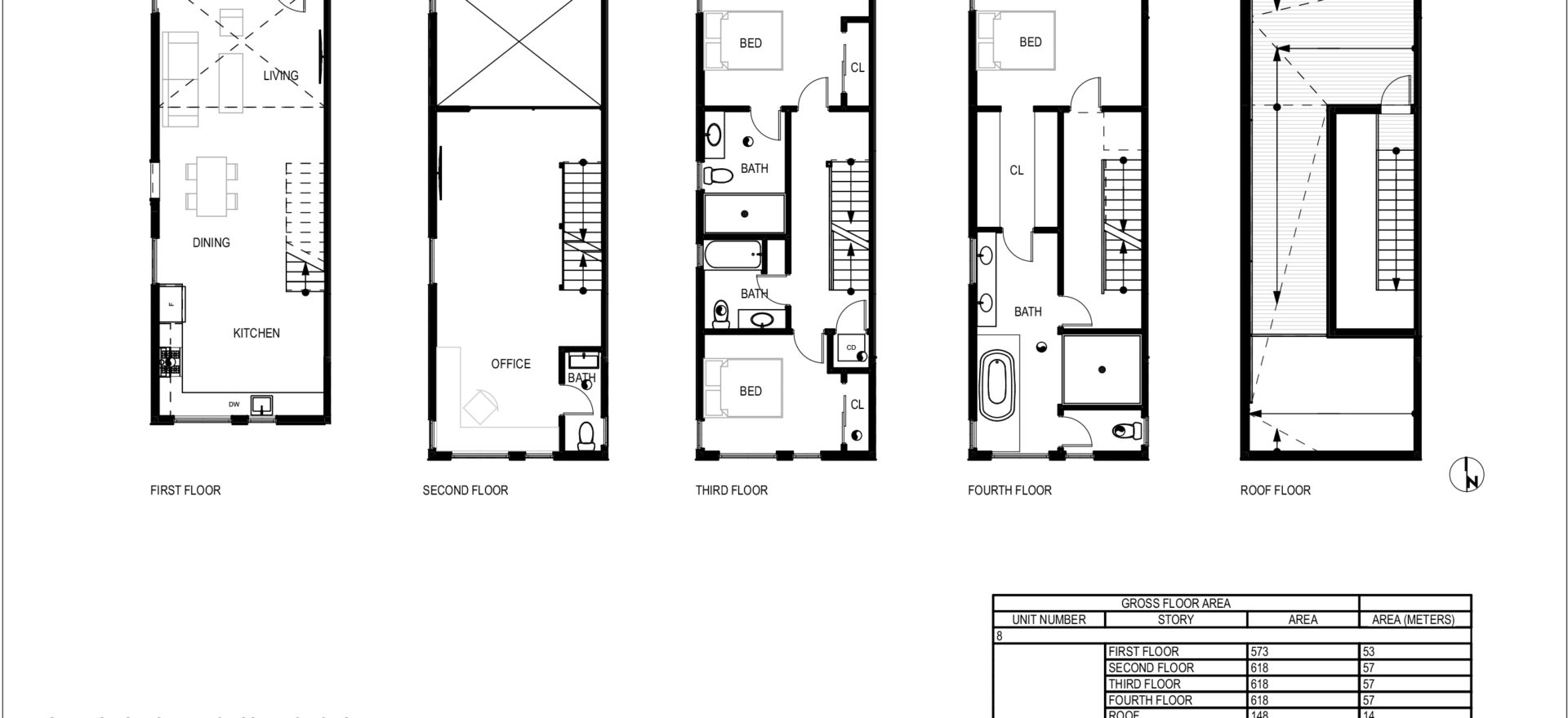
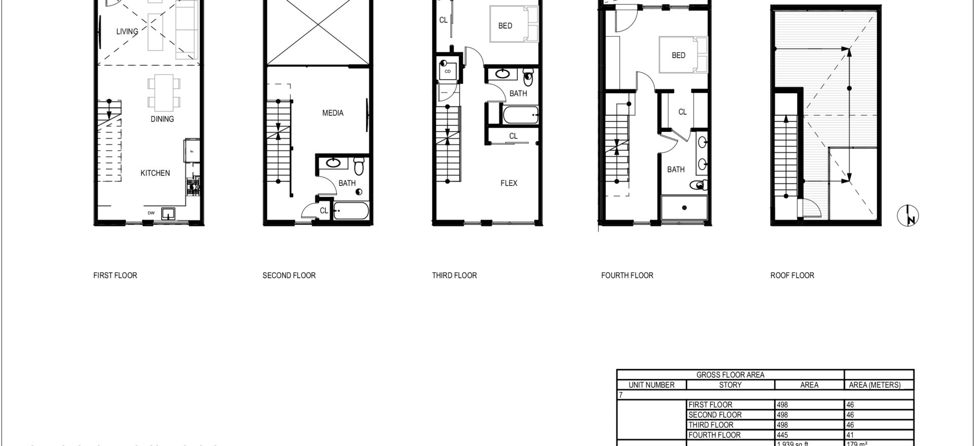
2-3 bd
2-3 ba
1,560-2,575 sqft
Key Facts

Gourmet Appliance Package, Featuring Bertazzoni Range and other Bosch Appliances

Metal and Wood Floating Stair Systems

Floor to Ceiling Engineered Metal with Glass Walls

Metal Railing Throughout

Polished Concrete and Hardwood Floors

Modern Cabinetry with Lifetime Warranty

Quartz Slab Countertops Throughout

Curbless Showers

Targeting LEED Gold

Energy Efficiency and Earth Friendly Focused for Your Well Being

Heat Pumps Provide Heating and Cooling

Heat Recovery Ventilation System

Low voc Materials

Spray Foam and Blown Batts Insulation

Amenities

Commercial Grade Rain Screen System

Drought Tolerant Landscaping

Upgraded Window Packages

Metal Canopies and Railings

Pervious Pavers

1 Covered Parking Stall per Home

Hardi Panel Siding

Zometek Decking, Highly Durable Recycled Products