Madison Park

Share

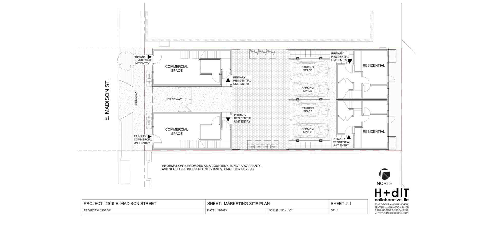
2919 E Madison St, Seattle, WA 98112 – Presale Available

4 Single Family Homes

Private gated entry, upscale 4 story homes with elevator, built-in closets, state-of-the-art gourmet kitchen, & high-quality construction built to last that you will not find anywhere else.

 

Estimated Completion: Spring 2024
School District: Seattle School District
Neighborhood: Madison
Walkscore: 85
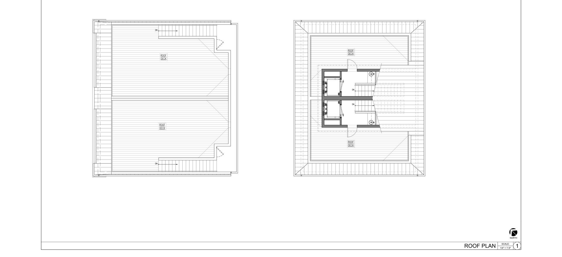
Views: Possibly from roof decks
Parks:

  • Madison Park
  • Hyde Place
  • McGilvra Place
  • Lambert Place
  • Prentis Frazier Park
  • Cayton Corner Park
  • Madison Park North Beach
  • McGilvra Boulevard
3-4 bd
2-4 ba
2,109-2,312 sqft
Key Facts

Gourmet Appliance Package, Featuring Bertazzoni Range and other Bosch Appliances

Metal and Wood Floating Stair Systems

Custom Powder Coated Metal Railings

Metal Railing Throughout

Polished Concrete and Hardwood Floors

Modern Cabinetry with Lifetime Warranty

Quartz Slab Countertops Throughout

Curbless Showers

Targeting LEED Gold

Energy Efficiency and Earth Friendly Focused for Your Well Being

Heat Pumps Provide Heating and Cooling

Heat Recovery Ventilation System

Low voc Materials

Spray Foam and Blown Batts Insulation

Amenities

Commercial Grade Rain Screen System

Drought Tolerant Landscaping

Upgraded Window Packages

Metal Canopies and Railings

Pervious Pavers

1 Parking Stall per Home

James Hardie Siding

Kebony Decking, Sustainable Beautiful Wood Products